All In
We are All In!
On April 27, 2025, our church members voted to approve our facility project. Scroll down to find out more information about this project and how you can be involved.

On April 27, 2025, our church members voted to approve our facility project. Scroll down to find out more information about this project and how you can be involved.
January-April 2025:
May 2025:
June-August 2025:
Fall 2025:
Winter 2026:
March 2026:
The permit and construction loan process will take place with the goal of having everything in place by the first of April.
Construction Plan
April 2026:
Demolition is scheduled to begin!
May 2026:
Demolition and structural work
June 2026:
Framing and mechanical work
July 2026:
Drywall, painting, tiling, plumbing
August 2026:
Ceilings and flooring
September 2026:
Final inspections, cleaning, moving
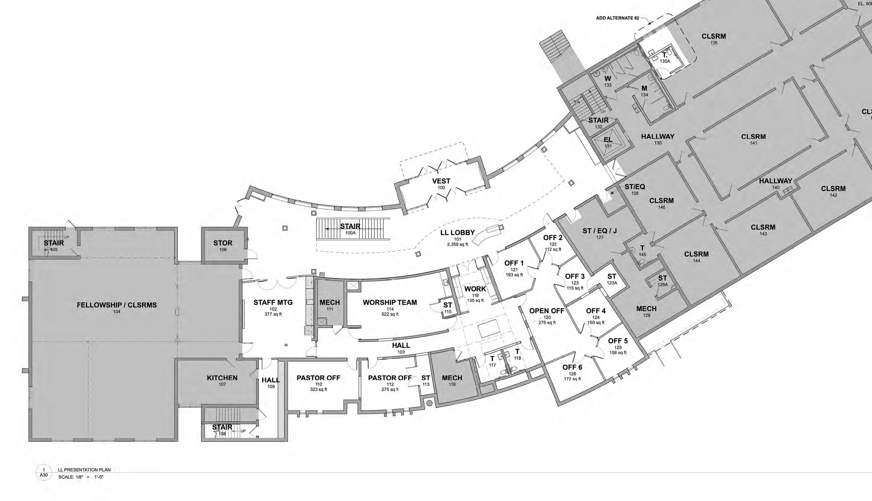
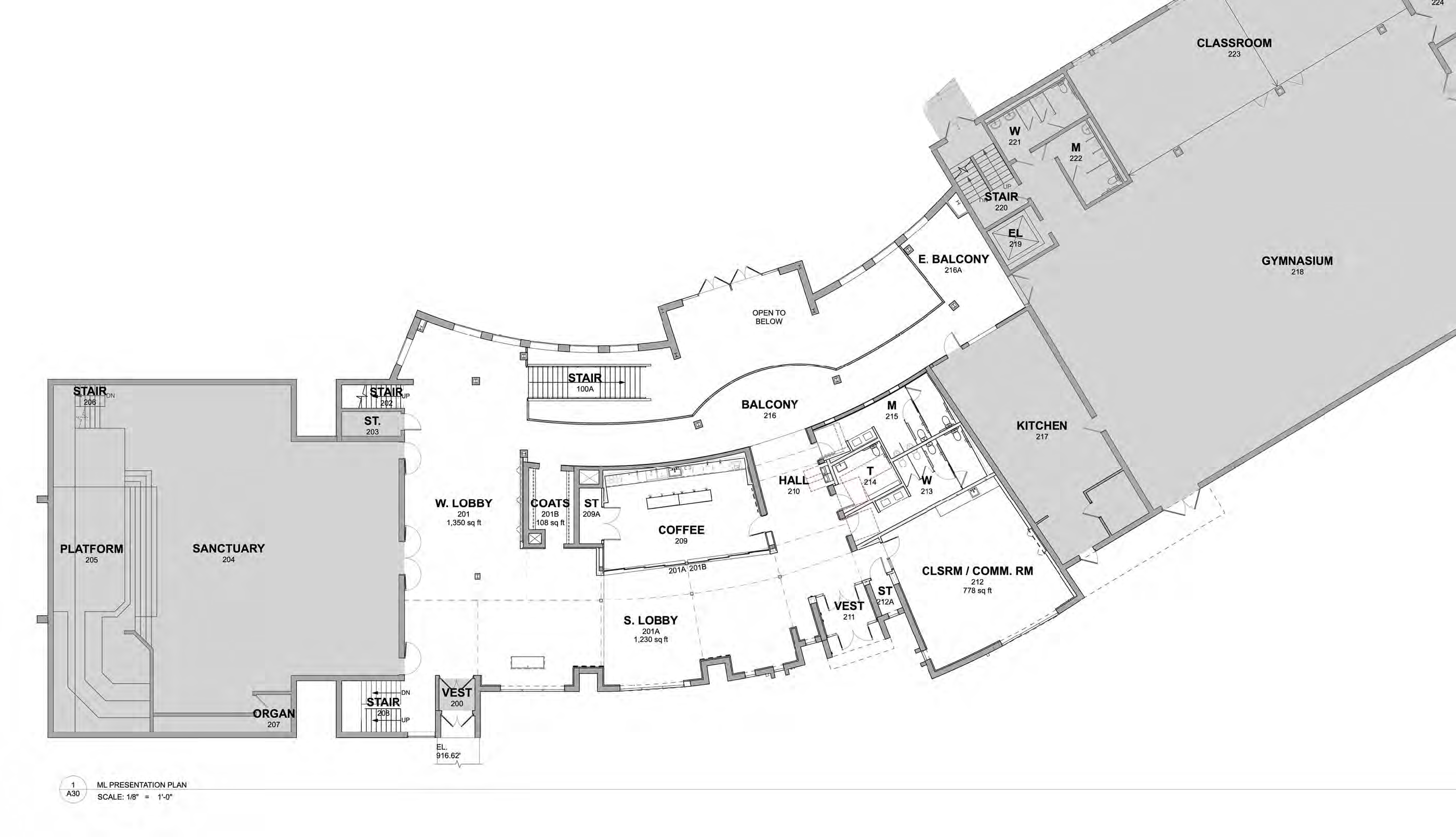
(Click to enlarge)






Our facility updates will help us to achieve the following goals:
Are you ready to be ALL IN? Fill out a pledge card or give to the project now (be sure to select All In Facility Project from the dropdown menu when you are giving).
This is the project timeline as of February 2026:
Summer 2025: Children’s wing renovations - DONE
Fall-Winter 2025: Preparation for construction - ALMOST COMPLETE
Spring-Summer 2026: Upper and lower level construction
TBD: Parking lot and back entrance
The renovation project is expected to total around 3 million dollars. This is not an insurmountable amount of money to raise, but it will require everyone at GracePoint to be All In on their commitment to contribute to this project.
We are beginning to ask for financial pledges from leadership and will extend that to the congregation soon. We expect this to be a three-year commitment. You can make your pledge here.
We do not want to incur debt to make the repairs and improvements to our campus. That said, we will need to have at minimum a bridge loan that we can draw against to bridge any gaps in giving-timing vs invoices due & payable for work completed.
To get the best pricing possible, we may agree to build at low-demand months and with odd staccato of labor inputs, but these savings will also require we promptly pay invoices independent of the flow of funds into the Capital Campaign account.